Maison T3
F. Chopin
Rue Frederic Chopin , Fay De Bretagne
- 63 m²
- 3 pièces
181 500 €
soit 846 €/mois
Livraison en 2028
Référence : VE1482/M01
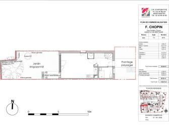
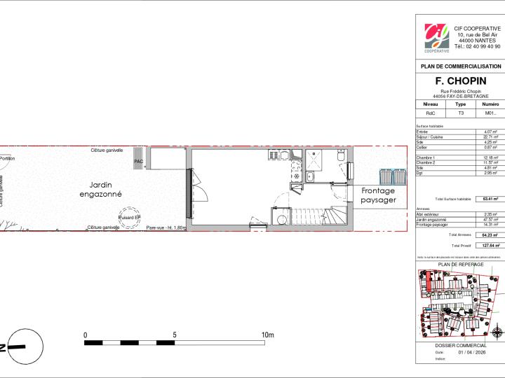
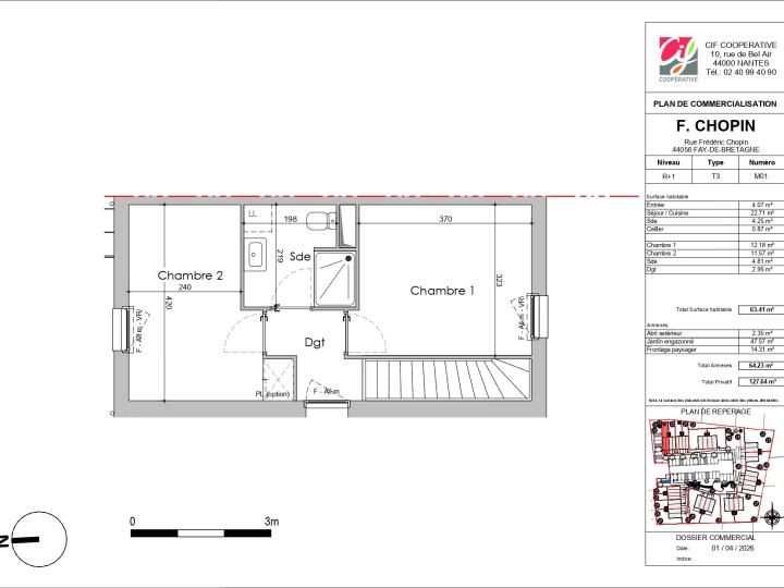
Détail du logement
- Type : T3
- Nombre de pièces : 3
- Étage : RDC
- Salle(s) de bain : 2
- Nombre de chambres : 2
- Surface habitable : 63 m²
- Surface au sol : 66 m²
- Meublé : non
- Référence : VE1482/M01
- Entrée :
- Chambre 2 : 11.6 m²
- Jardin : 56.3 m²
- Entrée : 4.1 m²
- Séjour/Cuisine : 22.7 m²
- Terrasse : 7.7 m²
- Salle d''eau/ toilettes : 4.3 m²
- Salle d''eau/ toilettes 2 : 4.8 m²
- Cellier : 0.9 m²
- Chambre 1 : 12.2 m²
- Rangement : 2.4 m²
- Rangement :
- Entrée Dégagement : 3 m²
- Parking aérien
- Parking aérien
- Prix : 181 500 €
- Charges annuelles : 240 €
Localisation
Rue Frederic Chopin , Fay De Bretagne
Logement Neuf maison T3 VE1482/M01
Autres établissements
Programme
F. Chopin
Fay De Bretagne
Livraison en 2028