Appartement Neuf T2 - REZÉ PIRMIL-LES-ISLES - Résidence IRIS
Découvrez à Rezé, au 5ème étage de la nouvelle résidence IRIS, cet appartement T2 qui combine confort moderne et engagement écologique.
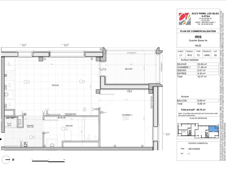
L'appartement offre une surface habitable de 42.07 m² qui se distingue par son beau séjour de 20.80 m². Cette pièce de vie est prolongée par un agréable balcon privatif de 6.69 m². Le logement comprend également une belle chambre de 11.46 m², une entrée et une salle d'eau de 5.51 m². 2 places de vélo et vélo cargos viennent compléter ce bien.
Les prestations intérieures sont de qualitative : le chauffage est assuré par le réseau de chaleur urbain avec thermostat d'ambiance. Vous profiterez d'un sol en parquet dans la chambre et d'une salle d'eau élégante avec faïence et carrelage Porcelanosa, meuble vasque et WC suspendus.
La résidence IRIS est Idéalement située dans la ZAC de Pirmil-les-Isles, un quartier en pleine mutation qui accueillera le nouveau CHU et une piscine olympique, ce bien bénéficie d'une localisation stratégique, parfaitement connectée à la métropole nantaise.
Le programme se distingue par son architecture soignée (utilisation de la pierre bleue de Nozay) et son engagement environnemental fort. S'inscrivant dans la Réglementation Environnementale 2028 et atteignant le Seuil 3 du label biosourcé, elle offre un cadre de vie plus vert avec son jardin central arboré.
Appartement T2
Iris
Bat. L1 Rue Rue de LAbbé Grégoire , Reze
- 42 m²
- 2 pièces
Livraison en 2028
Référence : VE1474/025
Détail du logement
- Type : T2
- Nombre de pièces : 2
- Étage : 5ème
- Nombre de chambres : 1
- Surface habitable : 42 m²
- Surface au sol : 6 m²
- Meublé : non
- Référence : VE1474/025
- Une gestion locative entièrement prise en charge
- Eligible au prêt à taux zéro
- TVA réduite à 5,5%
Offre de printemps
Le printemps est là... et si vous laissiez votre voiture prendre des vacances ? Profitez de l'offre de printemps exceptionnelle dans notre résidence IRIS, conçue pour la vie en vélo. 20 000 € offerts* + un vélo électrique** pour l'achat d'un logement ! Offre valable jusqu'au 21 juin. *Seulement pour les logements en accession libre TVA20%, remise déjà incluse dans les prix affichés **vélo électrique d'une valeur de 1300€TTC maximum.
- Prix : 202 900 €
- Charges annuelles : 2 026 €
Visite virtuelle 360
Localisation
Bat. L1 Rue Rue de LAbbé Grégoire , Reze
Logement Neuf appartement T2 VE1474/025
Autres établissements
Programme
Iris
Reze
Livraison en 2028