Devenez propriétaire à prix abordable à Nantes !
SYLVA vous propose 33 appartements du T2 au T4 vendus en Bail réel et Solidaire (BRS) édifiés au cœur d'un parc d'arbres centenaires pour certains. Chaque appartement dispose d'une place de stationnement et d'un espace extérieur privatif : balcon ou terrasse.
Grâce à leur double voire triple exposition, les appartements s'ouvrent largement sur les extérieurs et vous permettent une véritable communion avec la nature, sans aucun vis-à-vis.
Le Bail Réel est Solidaire (BRS) permet de bénéficier de prix abordables. Cumulé aux aides de financement telles que le Prêt à Taux 0% de l¿Etat, le prêt Accession d¿ACTION LOGEMENT, il facilite l¿accès à la propriété. Sous conditions de ressources.
N¿hésitez pas à prendre contact avec notre équipe commerciale au 02.40.99.40.90.
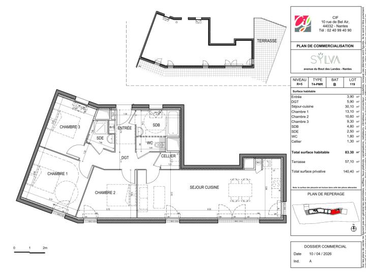
Appartement T4
Sylva
Bat. B 72 Av du Bout des Landes , Nantes
- 83 m²
- 4 pièces
215 000 €
soit 1 001 €/mois
Livraison en 2028
Référence : VE1487/119
Détail du logement
- Type : T4
- Nombre de pièces : 4
- Étage : 5ème
- Exposition du séjour : Sud
- Nombre de chambres : 3
- Surface habitable : 83 m²
- Surface au sol : 57 m²
- Meublé : non
- Référence : VE1487/119
- Garage 20 m²
- Prix : 215 000 €
- Charges annuelles : 1 008 €
Localisation
Bat. B 72 Av du Bout des Landes , Nantes
Logement Neuf appartement T4 VE1487/119
Autres établissements
Programme
Sylva
Nantes
Livraison en 2028
Vous pourriez aussi aimer...
-
1 images disponibles Neuf
Appartement T4
Nantes - Rond point de Rennes
215 000 €
soit 1 001 €/mois
- 82 m²
- 4 pièces
-
1 images disponibles Neuf
Appartement T4
Nantes - Rond point de Rennes
207 000 €
soit 964 €/mois
- 86 m²
- 4 pièces
-
2 images disponibles Neuf
Appartement T4
Nantes - Petit port - Faculté
285 495 €
soit 1 328 €/mois
- 76 m²
- 4 pièces