Devenez propriétaire à prix abordable à Nantes !
SYLVA vous propose 33 appartements du T2 au T4 vendus en Bail réel et Solidaire (BRS) édifiés au cœur d'un parc d'arbres centenaires pour certains. Chaque appartement dispose d'une place de stationnement et d'un espace extérieur privatif : balcon ou terrasse.
Grâce à leur double voire triple exposition, les appartements s'ouvrent largement sur les extérieurs et vous permettent une véritable communion avec la nature, sans aucun vis-à-vis.
Le Bail Réel est Solidaire (BRS) permet de bénéficier de prix abordables. Cumulé aux aides de financement telles que le Prêt à Taux 0% de l¿Etat, le prêt Accession d¿ACTION LOGEMENT, il facilite l¿accès à la propriété. Sous conditions de ressources.
N¿hésitez pas à prendre contact avec notre équipe commerciale au 02.40.99.40.90.
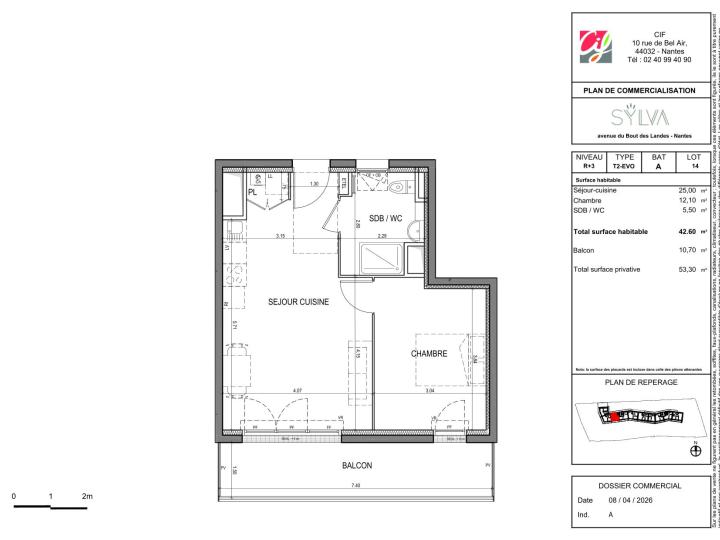
Appartement T2
Sylva
Bat. a 72 Av du Bout des Landes , Nantes
- 42 m²
- 2 pièces
130 000 €
soit 607 €/mois
Livraison en 2028
Référence : VE1487/14
Détail du logement
- Type : T2
- Nombre de pièces : 2
- Étage : 3ème
- Exposition du séjour : Sud
- Nombre de chambres : 1
- Surface habitable : 42 m²
- Surface au sol : 10 m²
- Meublé : non
- Référence : VE1487/14
- Parking 12.5 m²
- Prix : 130 000 €
- Charges annuelles : 516 €
Localisation
Bat. a 72 Av du Bout des Landes , Nantes
Logement Neuf appartement T2 VE1487/14
Autres établissements
Programme
Sylva
Nantes
Livraison en 2028
Vous pourriez aussi aimer...
-
1 images disponibles Neuf
Appartement T2
Nantes - Rond point de Rennes
130 000 €
soit 607 €/mois
- 44 m²
- 2 pièces
-
1 images disponibles Neuf
Appartement T2
Nantes - Rond point de Rennes
131 000 €
soit 611 €/mois
- 43 m²
- 2 pièces
-
1 images disponibles Neuf
Appartement T2
Nantes - Rond point de Rennes
131 000 €
soit 611 €/mois
- 44 m²
- 2 pièces