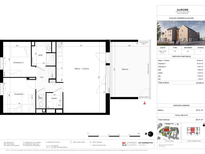
Au sein du programme immobilier neuf Aurore, découvrez ce bel appartement T3 de 63 m² situé au 1er étage, bénéficiant d'un grand séjour avec cuisine de 30.6 m² exposé plein sud, offrant une belle luminosité. Il se compose de 2 chambres, d'une salle d'eau avec WC, de WC séparés et de rangements. Vous profiterez également d'un grand balcon de 20 m², idéal pour les moments de détente et d'une place de stationnement.
La résidence est moderne et sécurisée et idéalement située face à la place de la République à Ancenis-Saint-Géréon. Elle est composée de 27 appartements en Bail réel Solidaire du T2 au T5 répartis sur 3 bâtiments. Dotée d'une architecture singulière, Aurore met l'accent sur des couleurs et matériaux doux et naturels s'intégrant au quartier existant. Un soin particulier a été apporté aux espaces verts, avec une attention particulière à la conservation des arbres existants. De plus, la résidence s'ouvre sur un magnifique espace paysager, offrant un cœur d¿îlot verdoyant et harmonieux.
Appartement T3
Aurore
Bat. B Rue Saint Fiacre , Ancenis-Saint-Gereon
- 63 m²
- 3 pièces
192 800 €
soit 898 €/mois
Livraison en 2027
Référence : VE1462/35
Détail du logement
- Type : T3
- Nombre de pièces : 3
- Étage : 1er
- Exposition du séjour : Sud
- Salle(s) de bain : 1
- Chauffage : individuel
- Nombre de chambres : 2
- Surface habitable : 63 m²
- Surface au sol : 20 m²
- Meublé : non
- Référence : VE1462/35
- Garantie du prix de revente
- Eligible au prêt à taux zéro
- TVA réduite à 5,5%
- Salle d''eau/ toilettes : 4.7 m²
- Balcon : 20.2 m²
- Cellier : 2.3 m²
- Séjour/Cuisine : 30.6 m²
- Chambre 1 : 10.4 m²
- Entrée Dégagement : 5.1 m²
- Chambre 2 : 9.6 m²
- WC : 1.4 m²
- Parking extérieur couvert
- Placard(s) non aménagé(s)
Remises exceptionnelles de 4 000 € à 6 000 €*
OFFRE SPECIALE ! Remises exceptionnelles de 4 000€ à 6 000 €* ! *Lot 3, 4, 8, 38. Remises déjà incluses des prix affichés, tarifs et conditions au 20/01/2026.
- Prix : 192 800 €
- Charges annuelles : 785 €
Visite virtuelle 360
Localisation
Bat. B Rue Saint Fiacre , Ancenis-Saint-Gereon
Logement Neuf appartement T3 VE1462/35
Autres établissements
Programme
Aurore
Ancenis-Saint-Gereon
Livraison en 2027
Vous pourriez aussi aimer...
-
1 images disponibles Neuf
Appartement T3
Ancenis-Saint-Gereon
194 600 €
soit 906 €/mois
- 63 m²
- 3 pièces
-
2 images disponibles Neuf
Appartement T3
Ancenis-Saint-Gereon
196 900 €
soit 917 €/mois
- 64 m²
- 3 pièces
-
2 images disponibles Neuf
Appartement T3
Ancenis-Saint-Gereon
184 900 €
soit 861 €/mois
- 64 m²
- 3 pièces