NANTES quartier St Joseph de Porterie. Proche Erdre, au calme, en bordure d'un bois.
Appartement T3 de 57.30m2 avec balcon et parking sous-sol privatif N°97 - Très lumineux !
Ce bel est situé au 1er étage (sur 2 étages au total) d'un petit bâtiment de 5 appartements; l'accès se fait de manière individuel par un accès privatif et extérieur.
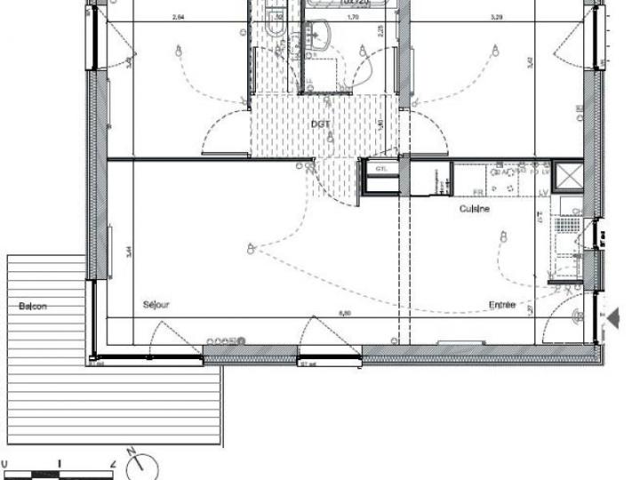
Triple orientation : Sud, Ouest et Est. Grand Balcon Sud Ouest de 8,7 m2
Il comprend : séjour de 23.70m², cuisine 4.90m² est meublée et équipée, 2 chambres de 11.1m² et de 9m², sdb de 3.9m², toilettes séparés.
Situé au 1er étage sans ascenseur.
L'électricité le chauffage ne sont pas compris dans les charges, basse consommation, le chauffage est au Gaz (chaudière individuelle à entretenir annuellement par le locataire).
Eau froide, entretien parties communes, espaces communs, compris dans les provisions sur charges mensuelles et donnant lieu à une régularisation annuelle.
PAS DE FRAIS D AGENCE - soumis à conditions de ressources et Assurance Loyers Impayés
Appartement T3
Bat. F 35 Rue des Grands Patis , Nantes
- 57 m²
- 3 pièces
684 € CC
Pas de frais d'agence
Disponibilité : 18/12/2025
Référence : LOCA898/43
Détail du logement
- Type : T3
- Nombre de pièces : 3
- Étage : 1er
- Exposition du séjour : Sud
- Salle(s) de bain : 1
- Type : gaz
- Chauffage : individuel
- Nombre de chambres : 2
- Surface habitable : 57 m²
- Meublé : non
- Référence : LOCA898/43
- Logement locatif social en vente : prix et frais de notaire réduits
- Frais d'agence offerts
- Chambre 1 : 11.1 m²
- Chambre 2 : 9 m²
- Dégagement 1 : 3.1 m²
- Balcon : 8.7 m²
- Salle de séjour : 23.7 m²
- Cuisine : 4.9 m²
- Salle de bains : 3.9 m²
- WC : 1.6 m²
- Chauffage Gaz
- Vitrage double
- Transports : Ligne de bus : Chronobus / Tram : Ligne 1
- Commerces : Bourg de St Joseph de Porterie
- Plafond de ressources Micro Foncier
- Garant impossible (sauf pour les étudiants) car assurance loyers impayés
- Prix : 684 € CC
- Dont charges : 15 €
- Eau chaude comprise : non
- Eau froide comprise : non
- Chauffage compris : non
- Montant du dépôt de garantie : 668,00 €
- Nb de lots de la copropriété : 49
- Logement non adapté pour la colocation
Diagnostic de performance énergétique réalisé après le 1er juillet 2021
Logement de performance C. La note finale retient le moins bon classement des deux.
Logement très performant
114
Logement extrêmement consommateur d'énergie
Indice de mesure : kWhEP/m2.an
Peu d'émissions de CO2
22
Emission de CO2 très importantes
Indice de mesure : kgeqCO2/m2.an
Dont émission de gaz à effet de serre
Estimation des coûts annuels d'énergie : entre 570 € et 820 €/an *
*Prix moyen des énergies calculées au 01/01/2021
Localisation
Bat. F 35 Rue des Grands Patis , Nantes
Logement Location appartement T3 LOCA898/43
Autres établissements