LA BERNERIE EN RETZ - PAS DE FRAIS D'AGENCE.
Dans le centre-ville de la BERNERIE EN RETZ à proximité des commerces et à 150m de la plage, un appartement de type 3 dans une résidence calme.
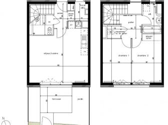
Cet appartement traversant comprend une entrée avec WC séparé, une cuisine ouverte, une belle pièce de vie donnant sur une terrasse, un couloir desservant 2 chambres et une salle de bain.
Le logement est loué avec un garage fermé et une place de stationnement.
Appartement T3
2 Rue Alsace Lorraine , La Bernerie En Retz
- 64 m²
- 3 pièces
781 € CC
Pas de frais d'agence
Disponibilité : 11/01/2026
Référence : LOCA222/08
Détail du logement
- Type : T3
- Nombre de pièces : 3
- Étage : 1er
- Exposition du séjour : Sud
- Salle(s) de bain : 1
- Type : electrique
- Nombre de chambres : 2
- Surface habitable : 64 m²
- Meublé : non
- Référence : LOCA222/08
- Frais d'agence offerts
- Cuisine : 5.9 m²
- WC : 1.3 m²
- Entrée Dégagement : 3.8 m²
- Terrasse : 6.1 m²
- Salle de séjour : 26.3 m²
- Salle d''eau/ toilettes : 3.6 m²
- Chambre 2 : 12.4 m²
- Chambre 1 : 11.7 m²
- Garage 13.2 m²
- Parking aérien 11.5 m²
- Interphone
- Vitrage double
- Écoles : X
- Plafond de ressources Loi Scellier social (acte signé AVANT 2011)
- Prix : 781 € CC
- Dont charges : 43 €
- Eau chaude comprise : non
- Eau froide comprise : non
- Chauffage compris : non
- Montant du dépôt de garantie : 737,00 €
- Logement non adapté pour la colocation
Diagnostic de performance énergétique réalisé avant le 1er juillet 2021
Logement économe







Logement énergivore
Indice de mesure : kWhEP/m2.an
Faible emission de GES







Forte émission de GES
Indice de mesure : kgeqCO2/m2.an
Localisation
2 Rue Alsace Lorraine , La Bernerie En Retz
Logement Location appartement T3 LOCA222/08
Autres établissements