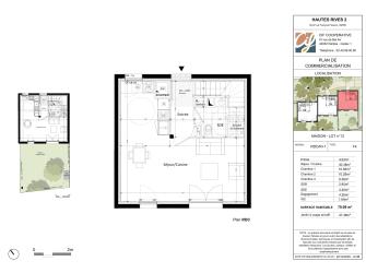
Découvrez cette belle maison T4 de 77 m² exposée sud-ouest avec un grand jardin de 200 m².
Elle est située dans la résidence Hautes Rives 2 au 50 rue François Poisson à Indre. La résidence est une réalisation à taille humaine, composée de 12 appartements et 3 maisons du T2 au T4.
Son architecture contemporaine et élégante s'intègre harmonieusement dans un environnement résidentiel et arboré. Chaque logement dispose d'une place de stationnement et d'un espace extérieur privatif, jardin pour les maisons, terrasse ou loggia pour les appartements. La résidence propose également un espace paysager partagé favorisant les échanges entre habitants. La résidence, sécurisée par visiophone, allie confort moderne, luminosité et sérénité, à seulement quelques minutes du centre de Nantes.
Cette maison est destinée à l'acquisition en résidence principale sous conditions de ressources et proposés à prix minorés grâce au dispositif du BRS (Bail Réel Solidaire).
Maison T4
Hautes Rives 2
52 Rue Francois Poisson , Indre
- 77 m²
- 4 pièces
246 718 €
soit 1 148 €/mois
Livraison en 2027
Référence : VE1471/15
Détail du logement
- Type : T4
- Nombre de pièces : 4
- Étage : RDC
- Exposition du séjour : Sud
- Salle(s) de bain : 2
- Nombre de chambres : 3
- Surface habitable : 77 m²
- Surface au sol : 198 m²
- Meublé : non
- Référence : VE1471/15
- Entrée : 4.9 m²
- Salle d''eau/ toilettes : 4.3 m²
- Jardin : 198.6 m²
- Séjour/Cuisine : 30 m²
- Chambre 1 : 10.5 m²
- Entrée :
- WC : 1.7 m²
- Chambre 3 : 9.1 m²
- Salle de bains : 3 m²
- Chambre 2 : 9.7 m²
- Entrée Dégagement : 4.3 m²
- Parking
- Parking
- Prix : 246 718 €
- Charges annuelles : 1 356 €
Visite virtuelle 360
Localisation
52 Rue Francois Poisson , Indre
Logement Neuf maison T4 VE1471/15
Autres établissements
Programme
Hautes Rives 2
Indre
Livraison en 2027