Devenez propriétaire de votre maison au cœur du bourg de Fay-de-Bretagne !
Située au nord-ouest de Nantes, Fay-de-Bretagne bénéficie d¿un accès rapide aux principaux axes routiers, facilitant les déplacements vers la métropole nantaise et les zones d¿emploi environnantes. Cette localisation permet de concilier les avantages d¿une vie au calme avec la proximité des pôles économiques et culturels de la région.
La résidence F. CHOPIN bénéficie d¿un environnement privilégié, entre nature et cœur de bourg. La commune séduit par son ambiance conviviale et son esprit de village, tout en proposant les services essentiels au quotidien. Commerces de proximité, établissements scolaires, équipements sportifs et services municipaux participent à un cadre de vie pratique et agréable pour les familles comme pour les actifs.
Situé rue Frédéric Chopin, F. Chopin est un ensemble résidentiel à taille humaine composé de 18 maisons individuelles du T2 au T5, toutes réservées à la résidence principale, dans le cadre de la location-accession PSLA.
Avantages : Prix abordable en TVA à 5.5% et exonération de taxe foncière pendant 15 ans.
Condition: Respecter un plafond de ressources
Belles prestations : pompe à chaleur, revêtement de sols GERFLOR, Faïence PORCELANOSA, 2 parkings privatifs par maison.
Livraison 4ème trimestre 2028
Maison T5 et plus
F. Chopin
Rue Frederic Chopin , Fay De Bretagne
- 93 m²
- 5 pièces
257 000 €
soit 1 196 €/mois
Livraison en 2028
Référence : VE1482/M14
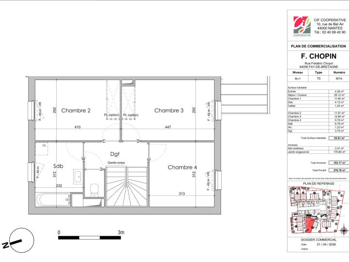
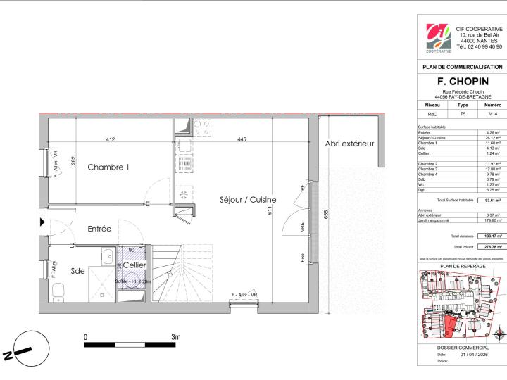
Détail du logement
- Type : T5 et plus
- Nombre de pièces : 5
- Étage : RDC
- Salle(s) de bain : 2
- Nombre de chambres : 4
- Surface habitable : 93 m²
- Surface au sol : 204 m²
- Meublé : non
- Référence : VE1482/M14
- Entrée :
- Rangement :
- Cellier : 1.2 m²
- Salle de bains : 6.6 m²
- Séjour/Cuisine : 26 m²
- Chambre 3 : 12.8 m²
- Entrée : 4.3 m²
- WC : 1.2 m²
- Chambre 1 : 11.6 m²
- Chambre 4 : 10.2 m²
- Salle d''eau/ toilettes : 4.1 m²
- Terrasse : 10.8 m²
- Chambre 2 : 11.9 m²
- Rangement : 3.4 m²
- Entrée Dégagement : 3.7 m²
- Jardin : 190.3 m²
- Parking aérien
- Parking aérien
- Prix : 257 000 €
- Charges annuelles : 240 €
Localisation
Rue Frederic Chopin , Fay De Bretagne
Logement Neuf maison T5 et plus VE1482/M14
Autres établissements
Programme
F. Chopin
Fay De Bretagne
Livraison en 2028