Devenez propriétaire à Vertou, commune résidentielle entre Nantes et le beau vignoble nantais.
Profitez de prix abordables grâce au dispositif du Bail Réel Solidaire (BRS).
La résidence EPURE, situé au 438-452 route de Clisson à Vertou se compose de 38 appartements, du T1 au T4, répartis sur deux bâtiments donnant sur un coeur d'îlot paysagé.
Son emplacement privilégié permet de profiter d¿un cadre de vie agréable, à deux pas de la Sèvre Nantaise, tout en restant connecté aux pôles dynamiques de la métropole nantaise grâce, notamment à la gare de Vertou située à deux pas permettant de rejoindre le centre de Nantes en 10 minutes.
Les appartements ont été conçus pour offrir des espaces de vie fonctionnels et lumineux. Chacun bénéficie d¿un jardin, balcon ou terrasse et d'une ou deux places de stationnement.
Réservés à la résidence principale exclusivement, le dispositif du bail réel solidaire (BRS) cumulé au Prêt à Taux O% et autres prêt bonifiés vous permet de devenir propriétaire de votre appartement à prix abordable.
Sous conditions de ressources.
Livraison prévue au 3ème trimestre 2028.
N'attendez plus pour prendre contact avec l'équipe commerciale au 02.40.99.40.90.
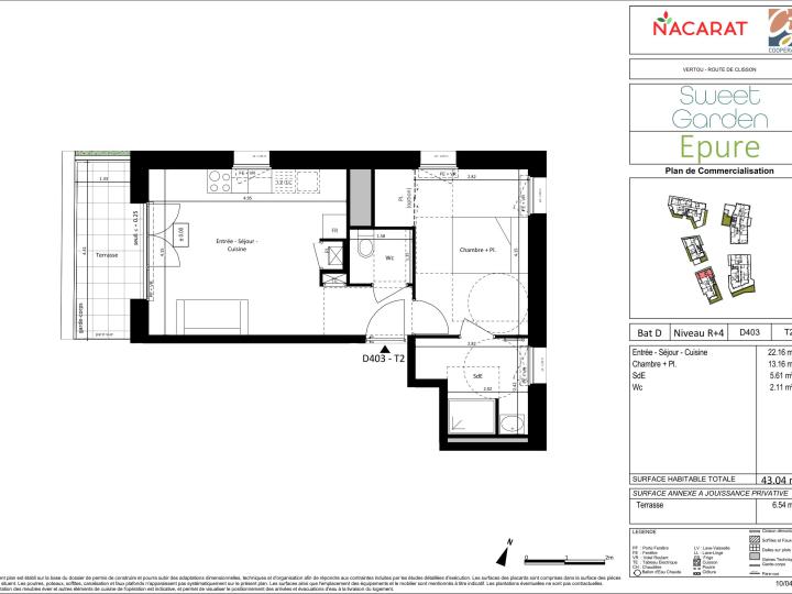
Appartement T2
Epure
Bat. D 446 Rte Route de Clisson , Vertou
- 43 m²
- 2 pièces
154 000 €
soit 718 €/mois
Livraison en 2028
Référence : VE1488/D403
Détail du logement
- Type : T2
- Nombre de pièces : 2
- Étage : 4ème
- Exposition du séjour : Ouest
- Salle(s) de bain : 1
- Type : gaz
- Nombre de chambres : 1
- Surface habitable : 43 m²
- Surface au sol : 6 m²
- Meublé : non
- Référence : VE1488/D403
- Salle d''eau/ toilettes : 5.6 m²
- Chambre 1 : 13.2 m²
- Terrasse : 6.5 m²
- Séjour/Cuisine : 22.2 m²
- WC : 2.1 m²
- Parking
- Ascenseur
- Chauffage Gaz
- Prix : 154 000 €
- Charges annuelles : 948 €
Localisation
Bat. D 446 Rte Route de Clisson , Vertou
Logement Neuf appartement T2 VE1488/D403
Autres établissements
Programme
Epure
Vertou
Livraison en 2028