Appartement Neuf T4 - REZÉ PIRMIL-LES-ISLES - Résidence IRIS
Découvrez à Rezé, au 6ème étage de la nouvelle résidence IRIS, cet appartement T4 qui combine confort moderne et engagement écologique.
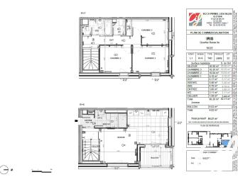
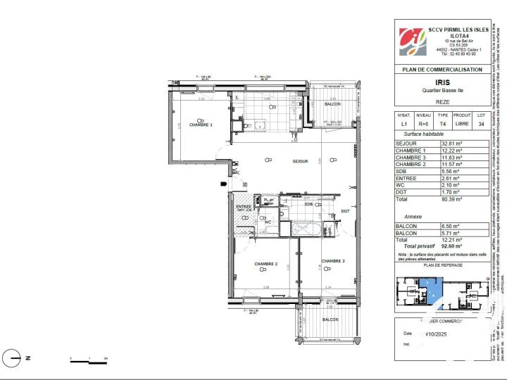
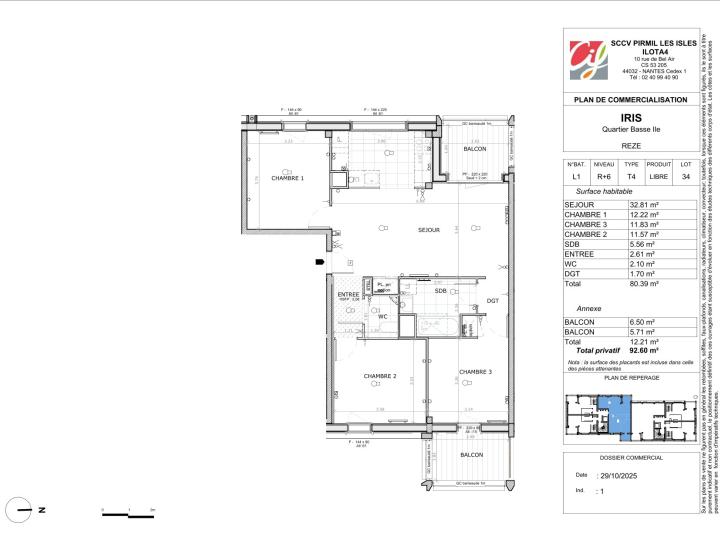
L'appartement offre une surface habitable de 80.39 m² qui se distingue par son grand séjour lumineux de 32.81 m². Cette pièce de vie est prolongée par 2 agréables balcons privatifs de 6.5 et 5.71 m². Le logement comprend également 3 belles chambres de 12.22 m², 11.57 m² et 11.83 m², une entrée, une salle de bain de 5.56 m². 2 places de vélo et vélo cargos viennent compléter ce bien.
Les prestations intérieures sont de qualitative : le chauffage est assuré par le réseau de chaleur urbain avec thermostat d'ambiance. Vous profiterez d'un sol en parquet dans les pièces sèches et d'une salle de bain élégante avec faïence et carrelage Porcelanosa, meuble vasque et WC suspendus.
La résidence IRIS est Idéalement située dans la ZAC de Pirmil-les-Isles, un quartier en pleine mutation qui accueillera le nouveau CHU et une piscine olympique, ce bien bénéficie d'une localisation stratégique, parfaitement connectée à la métropole nantaise.
Le programme se distingue par son architecture soignée (utilisation de la pierre bleue de Nozay) et son engagement environnemental fort. S'inscrivant dans la Réglementation Environnementale 2028 et atteignant le Seuil 3 du label biosourcé, elle offre un cadre de vie plus vert avec son jardin central arboré.
Appartement T4
Iris
Bat. L1 Rue Rue de LAbbé Grégoire , Reze
- 80 m²
- 4 pièces
Livraison en 2028
Référence : VE1474/034
Détail du logement
- Type : T4
- Nombre de pièces : 4
- Étage : 6ème
- Nombre de chambres : 3
- Surface habitable : 80 m²
- Surface au sol : 12 m²
- Meublé : non
- Référence : VE1474/034
- Une gestion locative entièrement prise en charge
- Eligible au prêt à taux zéro
- TVA réduite à 5,5%
- Parking en droit d'usage
Offre de printemps
Le printemps est là... et si vous laissiez votre voiture prendre des vacances ? Profitez de l'offre de printemps exceptionnelle dans notre résidence IRIS, conçue pour la vie en vélo. 20 000 € offerts* + un vélo électrique** pour l'achat d'un logement ! Offre valable jusqu'au 21 juin. *Seulement pour les logements en accession libre TVA20%, remise déjà incluse dans les prix affichés **vélo électrique d'une valeur de 1300€TTC maximum.
- Prix : 354 900 €
- Charges annuelles : 3 653 €
Visite virtuelle 360
Localisation
Bat. L1 Rue Rue de LAbbé Grégoire , Reze
Logement Neuf appartement T4 VE1474/034
Autres établissements
Programme
Iris
Reze
Livraison en 2028