Situé sur 180 hectares d'anciennes friches maraîchères, le futur quartier Doulon Gohards s'appuie sur ce patrimoine pour créer un quartier mixant fermes urbaines, espaces naturels, services (écoles, centre de loisirs) et qui favorise les transports collectifs, la marche et le vélo, avec des logements de qualité pour tous. Il est le fruit de plusieurs années de concertation avec les habitants.
Avec 100 hectares classés en zones naturelles ou inondables, le quartier fait la part belle à la nature et le ruisseau des Gohards sera mis en valeur. L'aménagement de celui-ci est également l¿occasion de restaurer un fonctionnement hydraulique de qualité, d¿accueillir une véritable biodiversité, et de proposer une trame cyclable et des cheminements doux pour accéder à la Loire et relier ce nouveau quartier à Nantes-Centre et Sainte Luce sur Loire. Entièrement piétonne, la première partie du quartier Doulon-Gohards prévoit la construction de 206 logements, parsemés de venelles et de jardins collectifs. Les véhicules des habitants seront regroupés au sein d'un parking silo avec panneaux photovoltaïques pour favoriser les circulations douces. Les transports en commun au sein du quartier vont être améliorés (la fréquence de la ligne de bus 87 va être renforcée, le C7 et le busway 8 prolongés).
Entre architecture et nature, le quartier Natureo de Doulon-Gohards est un pas de plus vers un urbanisme plus vert.
Appartement T3
Archipel
Bat. 6 Rue Henri Loiret , Nantes
- 71 m²
- 3 pièces
218 000 €
soit 771 €/mois
Livraison en 2026
Référence : VE1420/3_6
Détail du logement
- Type : T3
- Nombre de pièces : 3
- Étage : 1er
- Exposition du séjour : Sud
- Salle(s) de bain : 1
- Type : electrique
- Nombre de chambres : 2
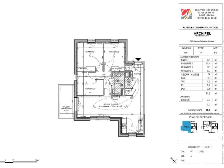
- Surface habitable : 71 m²
- Surface au sol : 7 m²
- Meublé : non
- Référence : VE1420/3_6
- Eligible au prêt à taux zéro
- Des prix 20 à 40% au dessous du marché grâce Nantes Métropole
- TVA réduite à 5,5%
- Entrée Dégagement : 3.6 m²
- Chambre 3 : 8.3 m²
- Chambre 2 : 9.1 m²
- WC : 1.2 m²
- Entrée : 5.1 m²
- Séjour/Cuisine : 27 m²
- Chambre 1 : 11.4 m²
- Balcon : 7 m²
- Entrée :
- Salle de bains : 4.1 m²
- Antenne Collective
- Ascenseur
- Fibre optique
- Interphone
- Placard(s) non aménagé(s)
- Vidéophone
- Vitrage double
- Prix : 218 000 €
- Charges annuelles : 1 020 €

Localisation
Bat. 6 Rue Henri Loiret , Nantes
Logement Neuf appartement T3 VE1420/3_6
Autres établissements
Programme

Archipel
Nantes
Livraison en 2026
Vous pourriez aussi aimer...
-
2 images disponibles Neuf
Appartement T3
Nantes - Bottière - Chénaie
218 000 €
soit 771 €/mois
- 71 m²
- 3 pièces
-
1 images disponibles Neuf
Appartement T3
Nantes - Bottière - Chénaie
222 800 €
soit 788 €/mois
- 76 m²
- 3 pièces
-
1 images disponibles Neuf
Appartement T3
Nantes - Bottière - Chénaie
224 400 €
soit 794 €/mois
- 75 m²
- 3 pièces