Situé sur 180 hectares d'anciennes friches maraîchères, le futur quartier Doulon Gohards s'appuie sur ce patrimoine pour créer un quartier mixant fermes urbaines, espaces naturels, services (écoles, centre de loisirs) et qui favorise les transports collectifs, la marche et le vélo, avec des logements de qualité pour tous. Il est le fruit de plusieurs années de concertation avec les habitants.
Avec 100 hectares classés en zones naturelles ou inondables, le quartier fait la part belle à la nature et le ruisseau des Gohards sera mis en valeur. L'aménagement de celui-ci est également l¿occasion de restaurer un fonctionnement hydraulique de qualité, d¿accueillir une véritable biodiversité, et de proposer une trame cyclable et des cheminements doux pour accéder à la Loire et relier ce nouveau quartier à Nantes-Centre et Sainte Luce sur Loire. Entièrement piétonne, la première partie du quartier Doulon-Gohards prévoit la construction de 206 logements, parsemés de venelles et de jardins collectifs. Les véhicules des habitants seront regroupés au sein d'un parking silo avec panneaux photovoltaïques pour favoriser les circulations douces. Les transports en commun au sein du quartier vont être améliorés (la fréquence de la ligne de bus 87 va être renforcée, le C7 et le busway 8 prolongés).
Entre architecture et nature, le quartier Natureo de Doulon-Gohards est un pas de plus vers un urbanisme plus vert.
Appartement T2
Archipel
Bat. 5 Rue Henri Loiret , Nantes
- 42 m²
- 2 pièces
215 000 €
soit 1 001 €/mois
Livraison 4 e trimestre 2026
Référence : VE1420/8_5
Détail du logement
- Type : T2
- Nombre de pièces : 2
- Étage : 2ème
- Exposition du séjour : Sud
- Salle(s) de bain : 1
- Type : electrique
- Nombre de chambres : 1
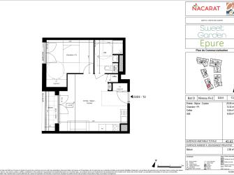
- Surface habitable : 42 m²
- Surface au sol : 12 m²
- Meublé : non
- Référence : VE1420/8_5
- Des prix 20 à 40% au dessous du marché grâce Nantes Métropole
- Eligible au prêt à taux zéro
- TVA réduite à 5,5%
- Entrée :
- WC : 2.4 m²
- Terrasse :
- Cellier :
- Entrée : 2.6 m²
- Entrée Dégagement : 3.7 m²
- Cellier : 1.3 m²
- Chambre 1 : 10.5 m²
- Salle d''eau/ toilettes : 3.2 m²
- Balcon : 11.2 m²
- Séjour/Cuisine : 19.6 m²
- Antenne Collective
- Ascenseur
- Fibre optique
- Interphone
- Placard(s) non aménagé(s)
- Vidéophone
- Vitrage double
- Prix : 215 000 €
- Charges annuelles : 648 €
Localisation
Bat. 5 Rue Henri Loiret , Nantes
Logement Neuf appartement T2 VE1420/8_5
Autres établissements
Programme
Archipel
Nantes
Livraison 4 e trimestre 2026
Vous pourriez aussi aimer...
-
1 images disponibles Neuf
Appartement T2
Nantes - Bottière - Chénaie
245 640 €
soit 1 143 €/mois
- 48 m²
- 2 pièces
-
7 images disponibles Neuf
Appartement T2
Nantes - Centre Ville
159 200 €
soit 742 €/mois
- 51 m²
- 2 pièces
-
2 images disponibles Neuf
Appartement T2
Nantes - Centre Ville
255 000 €
soit 1 187 €/mois
- 43 m²
- 2 pièces