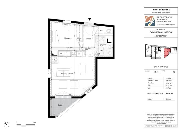
Découvrez ce bel appartement T2 de 40 m² exposé sud-ouest avec un balcon d'environ 4 m². il est situé au 1er étage da la résidence Hautes Rives 2 au 50 rue François Poisson à Indre. La résidence est une réalisation à taille humaine, composée de 12 appartements et 3 maisons du T2 au T4.
Son architecture contemporaine et élégante s'intègre harmonieusement dans un environnement résidentiel et arboré. Chaque logement dispose d'une place de stationnement et d'un espace extérieur privatif, jardin pour les maisons, terrasse ou loggia pour les appartements. La résidence propose également un espace paysager partagé favorisant les échanges entre habitants. La résidence, sécurisée par visiophone, allie confort moderne, luminosité et sérénité, à seulement quelques minutes du centre de Nantes.
Cet appartement est destiné à l'acquisition en résidence principale sous conditions de ressources et proposés à prix minorés grâce au dispositif du BRS (Bail Réel Solidaire).
Appartement T2
Hautes Rives 2
52 Rue Francois Poisson , Indre
- 40 m²
- 2 pièces
132 500 €
soit 470 €/mois
Livraison en 2027
Référence : VE1471/5
Détail du logement
- Type : T2
- Nombre de pièces : 2
- Étage : 1er
- Exposition du séjour : Sud
- Salle(s) de bain : 1
- Nombre de chambres : 1
- Surface habitable : 40 m²
- Surface au sol : 3 m²
- Meublé : non
- Référence : VE1471/5
- Entrée :
- Chambre 1 : 9.7 m²
- Balcon : 3.9 m²
- Entrée : 3.4 m²
- Séjour/Cuisine : 21.6 m²
- Salle d''eau/ toilettes : 3.7 m²
- WC : 1.9 m²
- Parking
- Prix : 132 500 €
- Charges annuelles : 704 €
Visite virtuelle 360
Localisation
52 Rue Francois Poisson , Indre
Logement Neuf appartement T2 VE1471/5
Autres établissements
Programme
Hautes Rives 2
Indre
Livraison en 2027