PAS DE FRAIS AGENCE
Appartement de 60.29 m2 avec balcon de 5.33 m2 situé dans le bourg de Thouaré sur Loire, proche des transports et des commerces de proximité.
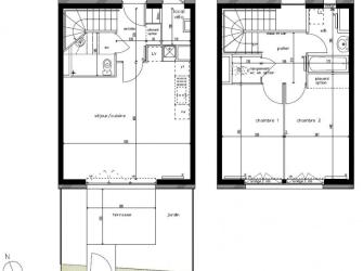
Il est situé au 3ème étage avec ascenseur et est composé d'une cuisine aménagée non équipée, d'un cellier, de 2 chambres, d'une salle de bain et d'un wc.
Un emplacement de parking souterrain est également compris dans cette location.
Chauffage individuel au gaz, l'entretien de la chaudière est compris dans les charges.
L'eau, l'électricité et le gaz du logement ne sont pas compris dans les charges.
Assurance de loyer impayé.
Appartement T3
Bat. B 2 Rue du Saule Blanc , Thouare Sur Loire
- 60 m²
- 3 pièces
769 € CC
Pas de frais d'agence
Disponible de suite
Référence : LOC237/47
Détail du logement
- Type : T3
- Nombre de pièces : 3
- Étage : 3ème
- Exposition du séjour : Sud
- Salle(s) de bain : 1
- Type : gaz
- Chauffage : individuel
- Nombre de chambres : 2
- Surface habitable : 60 m²
- Meublé : non
- Référence : LOC237/47
- Frais d'agence offerts
- Chambre 2 : 9.3 m²
- WC : 1.9 m²
- Entrée Dégagement : 8.7 m²
- Salle de bains : 5.3 m²
- Balcon : 5.3 m²
- Chambre 1 : 11.5 m²
- Séjour/Cuisine : 23.6 m²
- Box 15.36 m²
- Cellier 2.25 m²
- Ascenseur
- Chauffage Gaz
- Vidéophone
- Vitrage double
- Plafond de ressources Loi Scellier social (acte signé à partir de 2011)
- Garant impossible (sauf pour les étudiants) car assurance loyers impayés
- Prix : 769 € CC
- Dont charges : 65 €
- Eau chaude comprise : non
- Eau froide comprise : non
- Chauffage compris : non
- Montant du dépôt de garantie : 703,00 €
- Nb de lots de la copropriété : 53
- Colocation possible
Diagnostic de performance énergétique réalisé après le 1er juillet 2021
Logement de performance C. La note finale retient le moins bon classement des deux.
Logement très performant







Logement extrêmement consommateur d'énergie
Indice de mesure : kWhEP/m2.an
Peu d'émissions de CO2







Emission de CO2 très importantes
Indice de mesure : kgeqCO2/m2.an
Dont émission de gaz à effet de serre
Estimation des coûts annuels d'énergie : entre 690 € et 970 €/an *
*Prix moyen des énergies calculées au 01/01/2023
Localisation
Bat. B 2 Rue du Saule Blanc , Thouare Sur Loire
Logement Location appartement T3 LOC237/47
Autres établissements