PAS DE FRAIS D AGENCE
Dans un environnement verdoyant, face au Bois Sauvage, découvrez une résidence agréable avec ascenseur et parking en sous-sol.
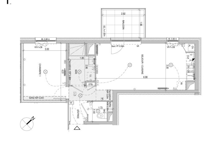
Laissez-vous séduire par ce bel appartement T2 lumineux de 46.20 m², situé au rdc, avec place de parking souterraine, balcon de 5,72 m², idéale pour profiter des beaux jours.
Il se compose d une spacieuse pièce de vie de 24.09 m² avec cuisine aménagée et équipée (réfrigérateur, congélateur, plaque de cuisson, hotte, four, micro-ondes), une chambre confortable de 12.03 m², une salle d eau de 4,70 m², WC séparés.
Le chauffage est individuel au gaz. L eau et l électricité non compris dans les charges.
L entretien de la chaudière est collectif. L entretien des parties communes et espaces verts inclus dans les provisions sur charges (avec régularisation annuelle).
Location sous conditions PSLA, soumise à un plafond de ressources.
Un cadre de vie agréable, alliant confort et nature.
À découvrir sans tarder - logement disponible de suite.
Garantie de loyers impayées
Appartement T2
Bat. Zac 3 Rue du Chene Jaunais Bat C , Nantes
- 46 m²
- 2 pièces
593 € CC
Pas de frais d'agence
Disponible de suite
Référence : LOC1356/39
Détail du logement
- Type : T2
- Nombre de pièces : 2
- Étage : RDC
- Salle(s) de bain : 1
- Type : electrique
- Chauffage : individuel
- Nombre de chambres : 1
- Surface habitable : 46 m²
- Meublé : non
- Référence : LOC1356/39
- Frais d'agence offerts
- Entrée : 3.2 m²
- Entrée :
- Chambre 1 : 12 m²
- Séjour/Cuisine : 24.1 m²
- Salle d''eau/ toilettes : 4.7 m²
- Balcon : 5.7 m²
- WC : 2.1 m²
- Parking souterrain 12.5 m²
- Chauffage Gaz
- Fibre optique
- Placard(s) non aménagé(s)
- Vidéophone
- Vitrage double
- Plafond de ressources PLS AANM
- Garant impossible (sauf pour les étudiants) car assurance loyers impayés
- Prix : 593 € CC
- Dont charges : 44 €
- Eau chaude comprise : non
- Eau froide comprise : non
- Chauffage compris : non
- Montant du dépôt de garantie : 498,00 €
- Nb de lots de la copropriété : 57
- Logement non adapté pour la colocation
Diagnostic de performance énergétique réalisé après le 1er juillet 2021
Logement de performance C. La note finale retient le moins bon classement des deux.
Logement très performant
83
Logement extrêmement consommateur d'énergie
Indice de mesure : kWhEP/m2.an
Peu d'émissions de CO2
17
Emission de CO2 très importantes
Indice de mesure : kgeqCO2/m2.an
Dont émission de gaz à effet de serre
Estimation des coûts annuels d'énergie : entre 370 € et 500 €/an *
*Prix moyen des énergies calculées au 01/01/2021
Localisation
Bat. Zac 3 Rue du Chene Jaunais Bat C , Nantes
Logement Location appartement T2 LOC1356/39
Autres établissements