SUD LOIRE - Dans le quartier SAINT - JACQUES à NANTES
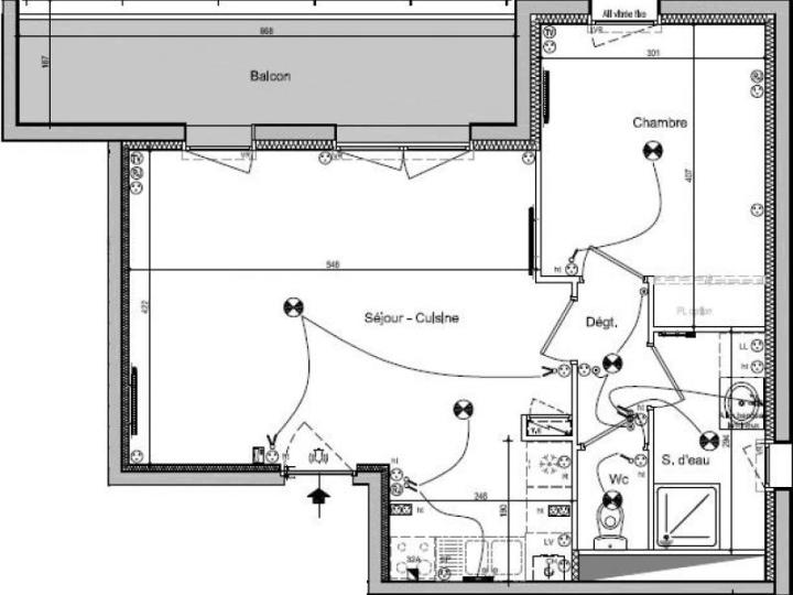
A louer un dans une résidence calme et sécurisée appartement de type 2 au premier étage sans ascenseur, composé d'un séjour, d'une cuisine ouvrant sur un grand balcon, une chambre séparée avec un placard, une salle d'eau et un WC séparé.
Garage privatif fermé.
Chauffage et eau chaude au gaz.
L'eau froide, l'électricité et le gaz ne sont pas dans les charges.
L'entretien des communs est compris dans les charges.
Appartement T2
Bat. B 59 Rue des Fromenteaux , Nantes
- 47 m²
- 2 pièces
638 € CC
Pas de frais d'agence
Disponibilité : 29/11/2025
Référence : LOCA863/022
Détail du logement
- Type : T2
- Nombre de pièces : 2
- Étage : 1er
- Année : 2012
- Salle(s) de bain : 1
- Type : gaz
- Chauffage : individuel
- Nombre de chambres : 1
- Surface habitable : 47 m²
- Meublé : non
- Référence : LOCA863/022
- Frais d'agence offerts
- Dégagement 1 : 2.1 m²
- Chambre 1 : 11.2 m²
- Séjour/Cuisine : 28.1 m²
- Salle d''eau/ toilettes : 4.4 m²
- Balcon : 11.2 m²
- WC : 1.3 m²
- Box 13.6 m²
- Chauffage Gaz
- Placard(s) aménagé(s)
- Vidéophone
- Plafond de ressources Loi Scellier social (acte signé à partir de 2011)
- Garant impossible (sauf pour les étudiants) car assurance loyers impayés
- Prix : 638 € CC
- Dont charges : 48 €
- Eau chaude comprise : non
- Eau froide comprise : non
- Chauffage compris : non
- Montant du dépôt de garantie : 589,00 €
- Nb de lots de la copropriété : 25
- Logement non adapté pour la colocation
Diagnostic de performance énergétique réalisé avant le 1er juillet 2021
Logement économe
53
Logement énergivore
Indice de mesure : kWhEP/m2.an
Faible emission de GES
12
Forte émission de GES
Indice de mesure : kgeqCO2/m2.an
Localisation
Bat. B 59 Rue des Fromenteaux , Nantes
Logement Location appartement T2 LOCA863/022
Autres établissements