Au sein du programme immobilier neuf AURORE, installez votre activité ou investissez en locatif dans un local d'activité.
La résidence, moderne et sécurisée est idéalement située face à la place de la République à Ancenis-Saint-Géréon.
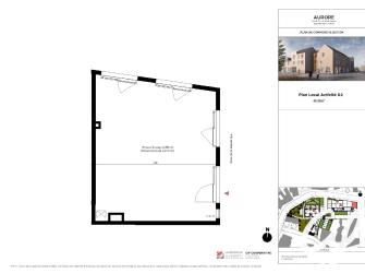
Nous vous proposons ce local de 87 m² au sol vendu brut (sans aménagement intérieur), menuiseries extérieures posées.
Possibilité de réunir ce local avec un local mitoyen de 50 m² pour une surface totale de 137 m².
Des places de stationnement visiteurs sont prévues au sein de la résidence.
Livraison prévue au 1er trimestre 2028.
Local commercial
Aurore
Bat. a Pl de la Republique , Ancenis-Saint-Gereon
- 87 m²
Livraison en 2028
Référence : VE1462/01
Détail du logement
- Type : T5 et plus
- Étage : RDC
- Chauffage : individuel
- Surface habitable : 87 m²
- Surface au sol : 87 m²
- Meublé : non
- Référence : VE1462/01
- Garantie du prix de revente
- Eligible au prêt à taux zéro
- TVA réduite à 5,5%
- Placard(s) non aménagé(s)
Remises exceptionnelles de 4 000 € à 6 000 €*
OFFRE SPECIALE ! Remises exceptionnelles de 4 000€ à 6 000 €* ! *Lot 3, 4, 8, 38. Remises déjà incluses des prix affichés, tarifs et conditions au 20/01/2026.
- Prix : 220 000 €
- Charges annuelles : 986 €
Localisation
Bat. a Pl de la Republique , Ancenis-Saint-Gereon
Logement Neuf local commercial T5 et plus VE1462/01
Autres établissements
Programme
Aurore
Ancenis-Saint-Gereon
Livraison en 2028