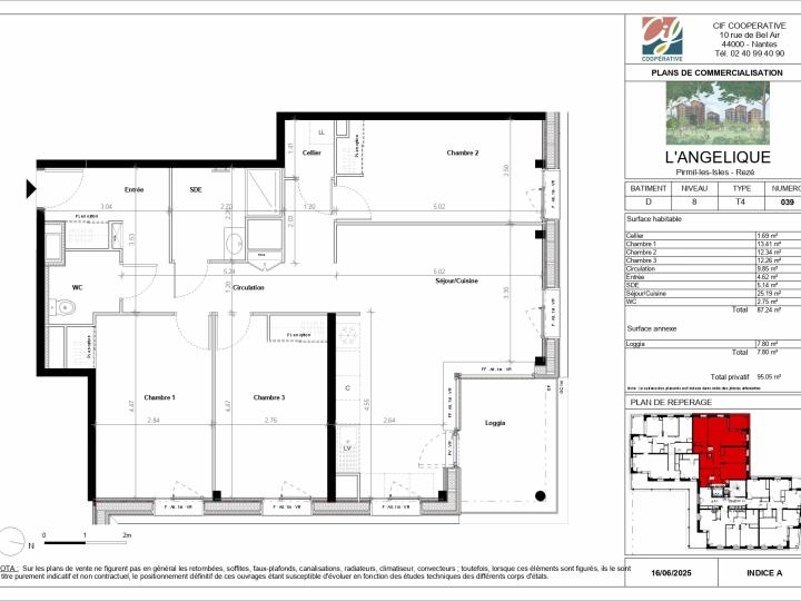
Appartement T4
L'Angelique
Bd du General de Gaulle , Reze
- 87 m²
- 4 pièces
234 000 €
soit 1 089 €/mois
Livraison en 2028
Référence : VE1468/039
Détail du logement
- Type : T4
- Nombre de pièces : 4
- Étage : 8ème
- Salle(s) de bain : 1
- Type : electrique
- Nombre de chambres : 3
- Surface habitable : 87 m²
- Surface au sol : 7 m²
- Meublé : non
- Référence : VE1468/039
- Des prix 20 à 40% au dessous du marché grâce Nantes Métropole
- Garantie du prix de revente
- Eligible au prêt à taux zéro
- TVA réduite à 5,5%
- Chambre 1 : 13.4 m²
- WC : 2.8 m²
- Salle de bains : 5.1 m²
- Chambre 2 : 12.3 m²
- Séjour/Cuisine : 25.2 m²
- Loggia : 7.8 m²
- Entrée :
- Cellier : 1.7 m²
- Entrée Dégagement : 9.9 m²
- Chambre 3 : 12.3 m²
- Entrée : 4.6 m²
- Parking en droit d'usage
- Ascenseur
- Prix : 234 000 €
- Charges annuelles : 2 664 €
Localisation
Bd du General de Gaulle , Reze
Logement Neuf appartement T4 VE1468/039
Autres établissements
Programme
L'Angelique
Reze
Livraison en 2028